Gruppenreisen
Die Ebenmühle stellt sich Seminarausrichtern und Gruppen und Vereinen vor…
Suchen Sie ein Lokation die ruhig und abgeschieden ist? Kein lauter Umtrieb wie in einer Jugendherberge oder Hotelbetrieb…individuell nur für Sie…allein.
Ein Haus mitten in der Natur idyllisch gelegen - niemand stört Sie und Sie stören niemand!
Dann Sind Sie bei uns richtig!
Wir vermieten für Gruppen (14- 24 Personen) die ganze Ebenmühle – damit Sie in Ruhe und ungestört Ihr/en Workshop/Offside-Meeting/Seminar/Probewochenende ( z.b.Musikvereine ) durchführen können.
Wir verfügen im Erdgeschoss über einen großen Seminarraum (ausgestattet mit Leinwand/Beamer/Internetanschluss/TV-Radio/Tagungsbestuhlung und Relaxmatten) einem separaten Speiseraum mit angeschlossener Bibliothek/Fernsehzimmer verbunden mit einem Kachelofen.
Fax und Telefon sind in unserem Büro zugänglich.
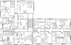
Grundriss EG Ebenmühle…
(ein Klick auf das Bild öffnet eine vergrößerte Version und startet die Diashow)
Der Seminarraum / Der Speisesaal / Die Bibliothek
Unsere 12 Zimmer sind verteilt auf 2 Etagen und sind meistens mit Doppelbetten ausgestattet.
Einige verfügen über ein separates Duschbad – der Rest verfügt über ein Etagenbad, sind aber dann oft mit einem eigenen Waschplatz ausgestattet. Auf jeder Etage sind Küchen vorhanden.
Grundriss 1 OG…
Grundriss 2 OG…
Zur Erholung in den Pausen sind Spaziergänge und Wanderungen ab Haus möglich.
Eine Besichtigung des nahegelegen Kloster Bronnbach (Fussweg 40min) bietet sich an.
Eine Führung durch das Kloster sowie eine Weinprobe mit den regionnalen Weinen im historischen Weinkeller des Klosters kann organisiert werden.
Auch die Feste Wertheim und die Altstadt ist ein lohnendes Ausflugsziel (Auto 5 min) sowie die Gamburg …und für die Einkaufsfreudigen ist das Outletcenter Wertheim in 25Autominunten erreichbar und…und…und.
Momentan ist die Ebenmühle noch auf Selbstversorgergruppen ausgelegt – dazu kann ein separater Küchenblock in dem Speiseraum genutzt werden.
Eine Grossküche ist in Planung.
Es gibt die Möglichkeit sich das Mittagessen und Abendessen durch unseren Hauscaterer liefern zu lassen.
Im Sommer lädt unser große Terasse zum Grillen ein…
Betreut werden Sie von unserem Hausmeister, Herrn Seijkens, der gerne auf Ihre Wünsche eingeht.
Falls Ihr Interesse geweckt wurde und Sie noch Fragen haben, können Sie sich gerne an uns wenden…
Familie Mehler Hardstr.22 68782 Brühl Telefon 06202/78758 oder mobil 01717149922
Lage der Ebenmühle….
Unsere Einrichtung und Zimmer…
Die Gruppenpreise finden Sie (wie alle anderen Preise der Ebenmühle) in der nachfolgenden PDF-Datei:
Wir freuen uns auf Sie ….
















